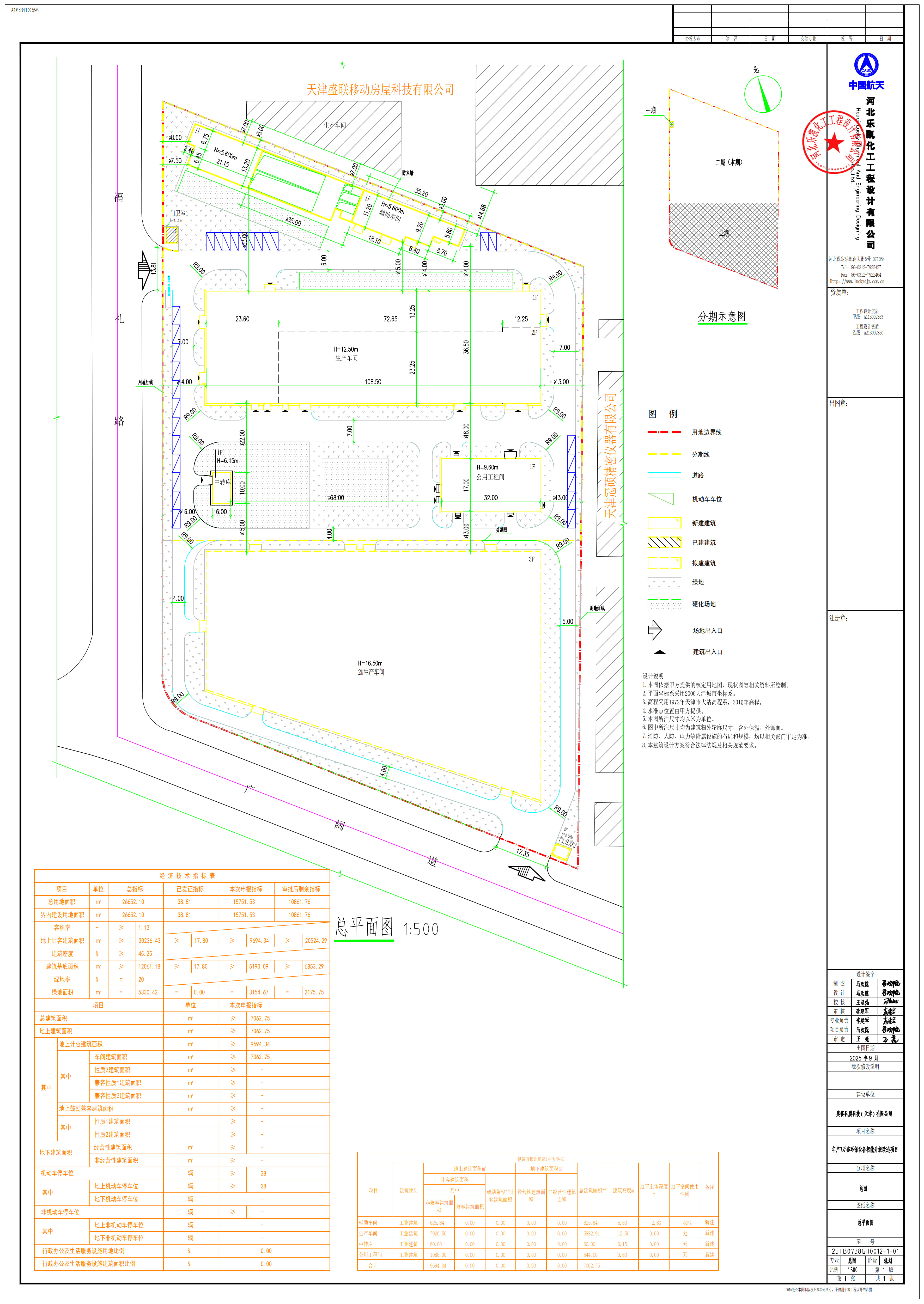
******有限公司辅助车间、生产车间、中转库、公用工程间项目建设工程规划许可证。依据《中华人民共和国城乡规划法》及住房和城乡建设部《关于城乡规划公开公示的规定》的有关要求,现将该项目总平面图公布,公布期限为信息发布之日起至建设项目规划验收合格为止。
******资源局宝坻分局
建议意见反馈方式:可通过电子邮箱或信件反馈 ?
******资源局宝坻分局)
邮编:301800
******

******有限公司辅助车间、生产车间、中转库、公用工程间项目建设工程规划许可证。依据《中华人民共和国城乡规划法》及住房和城乡建设部《关于城乡规划公开公示的规定》的有关要求,现将该项目总平面图公布,公布期限为信息发布之日起至建设项目规划验收合格为止。
******资源局宝坻分局
建议意见反馈方式:可通过电子邮箱或信件反馈 ?
******资源局宝坻分局)
邮编:301800
******

【1】凡本网注明"来源:机电设备采购平台"的所有文字、图片和音视频稿件,版权均属于机电设备采购平台,转载请必须注明机机电设备采购平台,违反者本网将追究相关法律责任。
【2】本网转载并注明自其它来源的作品,是本着为读者传递更多信息之目的,并不代表本网赞同其观点或证实其内容的真实性,不承担此类作品侵权行为的直接责任及连带责任。其他媒体、网站或个人从本网转载时,必须保留本网注明的作品来源,并自负版权等法律责任。
【3】如涉及作品内容、版权等问题,请在作品发表之日起一周内与本网联系。
分享到朋友圈
一天内免费查看信息来源站点
分享成功后点击跳转
每天提供100000+条招投标采购信息,随时掌握最新发布的商机,实时更新
查看信息(30条/天)
信息订阅(5组)
来源跳转验证(30次)
附件下载(部分正文涵盖)
查看信息(100条/天)
信息订阅(10组)
来源跳转验证(100次)
项目导出(100条)
附件下载(部分正文涵盖)
查看信息(无限制)
信息订阅(无限制)
来源跳转验证(无限制)
企业推荐
项目导出(1000条)
企业信息
标友圈
附件下载(部分正文涵盖)
此功能只对更高等级会员开放,立即提升会员等级!享受更多权益及功能
打开微信扫一扫完成付款